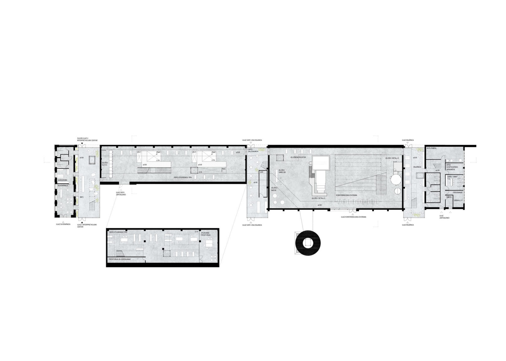
Arhitektonsko – urbanističko uređenje Interpretacijskog centra Segestika
prvonagrađeni rad
| LOKACIJA | Sisak |
| AUTOR | Sara Jurinčić |
| Aleksandar Matijašević | |
| Dino Mišković | |
| Tatjana Barišić Antolić | |
| GODINA PROJEKTA | 2018. |
| FAZA | natječaj / 1. nagrada / idejni projekt / glavni projekt / izvedbeni projekt |



















